Specifications Table
| Feature | Specification |
|---|---|
| Drive System | N/A |
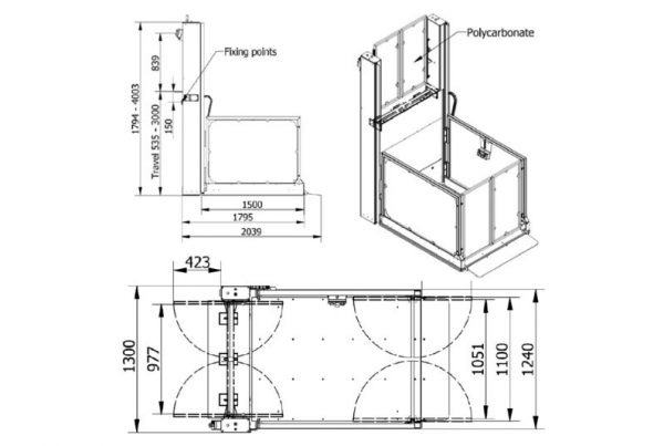
| Rated Load | 225 kg |
| Power Supply | 240 VAC single phase, 10 amp supply |
| Travel Speed | 0.10 m/sec |
| Platform Size | 600 mm (W) x 650 mm (D) |
| Side Clearance Required | Minimal |
| Lift Rail | Standard natural anodized aluminium |
| Lift Finish | RAL 7035 (option for any RAL colour) |
| Width Unfolded | 1050 mm |
| Width Folded Up | 300 mm |
| Compliance | AS1735.7 |
| Application | Indoor (residential and commercial) |
At Axis Lifts, we are committed to providing exceptional disability access solutions that meet the highest standards of safety and functionality. Our Straight C7 stair lift is designed to cater to both residential and commercial applications, ensuring reliable and efficient access for all users. In this blog post, we will explore the detailed specifications of the Straight C7 stair lift, highlighting why it is an excellent choice for enhancing accessibility in various settings.
Robust and Reliable Design
The Axis Straight C7 stair lift features a robust design that ensures reliable operation and long-lasting performance. With a rated load capacity of 225 kilograms, this stair lift can comfortably accommodate users along with their mobility aids, providing a safe and secure means of traversing stairs.
Efficient Power Supply and Performance
The stair lift operates on a 240 VAC single phase power supply with a 10-amp supply. This efficient power setup ensures that the lift can function smoothly and consistently, even under frequent use. The travel speed of the Straight C7 stair lift is 0.10 metres per second, allowing for a steady and controlled ascent and descent.
Compact and Versatile
Designed with versatility in mind, the Straight C7 stair lift can be installed with standard natural anodized aluminium rails either on the wall or on columns. The platform size is 600 mm in width and 650 mm in depth, providing ample space for users. When not in use, the stair lift folds up to a compact width of 300 mm, ensuring it does not obstruct the regular use of the stairs.
Customisable Appearance
The standard lift colour is RAL 7035, but there is an option to customise the lift with any RAL colour to match the surrounding decor and design preferences. This customisation option allows the stair lift to blend seamlessly into any environment, whether residential or commercial.
Compliance with Safety Standards
Safety is a top priority at Axis Lifts, and the Straight C7 stair lift complies with the latest Australian standards, specifically AS1735.7. This compliance ensures that the stair lift meets rigorous safety and performance criteria, providing users with a secure and dependable means of access.
User-Friendly Features
The stair lift is designed for ease of use, with simple controls and a smooth operation that makes it accessible for users of all ages and abilities. The side clearance required for installation is minimal, ensuring that the lift can be installed in various settings without major modifications.
Contact Us for More Information
At Axis Lifts, we understand that each client’s needs are unique. Our friendly and knowledgeable sales team is always ready to provide detailed information and answer any questions you may have about the Straight C7 stair lift. Whether you are looking to improve accessibility in your home, office, or commercial building, we are here to help you find the perfect solution.
Contact us today at sales@axislifts.com.au or call 1300 122 868 to learn more about how our stair lifts can improve accessibility in your environment.
Drawings



